Ten lokal w rynku czeka na najemcę

Miasto zachęca do wynajęcia lokalu przy Rynku 9 w Wodzisławiu. - Jeśli szukasz miejsca, w którym mógłbyś otworzyć wymarzoną restaurację, kawiarnię lub inny lokal gastronomiczny, mamy świetną ofertę - czytamy na stronie wodzisławskiego magistratu.
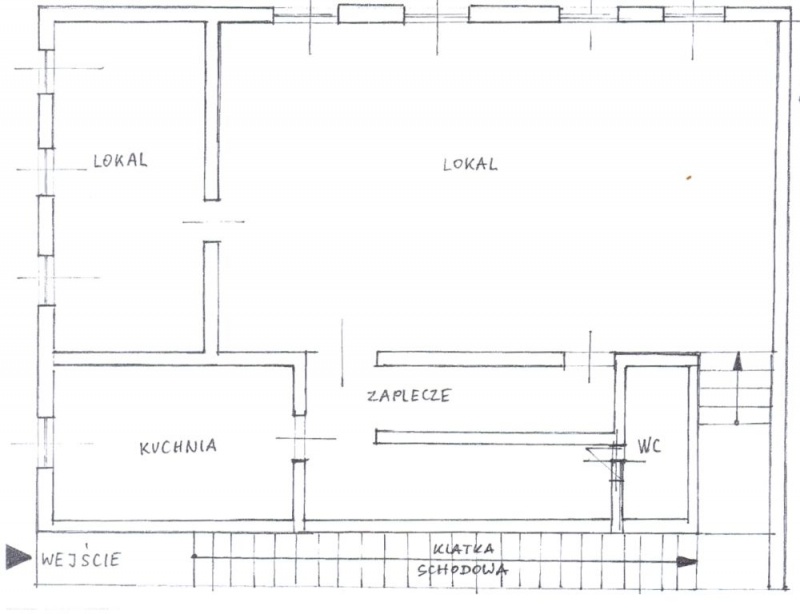
W samym centrum miasta, dokładnie na rynku, istnieje możliwość wynajęcia dużego lokalu użytkowego o powierzchni 161,18 m kw., który składa się z powierzchni głównej przeznaczonej do prowadzenia działalności, sanitariatu, zaplecza - w tym pomieszczenia magazynowego oraz zaplecza gastronomicznego. Do dyspozycji najemcy jest również pomieszczenie piwniczne o pow. 27,61 m kw.
Lokal wyposażony jest w instalację: elektryczną, wodno-kanalizacyjną, centralnego ogrzewania. - To z pewnością jedno z najlepiej położonych w mieście miejsc przygotowanych pod prowadzenie działalności restauratorskiej - zachwala miasto.
Wyłonienie najemcy lokalu nastąpi na pisemny wniosek zainteresowanej najmem strony, w formie negocjacji stawki czynszu najmu. Stawka wyjściowa za wynajem 1 m kw powierzchni użytkowej lokalu wynosi netto 10,00 zł do 32,00 zł (w zależności od rodzaju prowadzonej działalności). W negocjacjach mogą wziąć udział osoby fizyczne lub prawne, które nie zalegają z opłatami wobec Miasta Wodzisławia Śląskiego.
Kontakt dla zainteresowanych:
Zakład Gospodarki Mieszkaniowej i Remontowej
ul. Mendego 2
44-300 Wodzisław Śląski
32 4551490, 32 4556544
(opr.m)











![Nowy rozdział dla edukacji motoryzacyjnej w Powiecie Wodzisławskim [FOTO] Nowy rozdział dla edukacji motoryzacyjnej w Powiecie Wodzisławskim [FOTO] - Serwis informacyjny z Raciborza - naszraciborz.pl](photos/_thumbs/mini_1765966981bcu-pszow-.jpg)



















![Poznaj Branżowe Centrum Umiejętności w Pszowie [WIDEO] Poznaj Branżowe Centrum Umiejętności w Pszowie [WIDEO] - Serwis informacyjny z Raciborza - naszraciborz.pl](photos/_thumbs/mini_1766147045bez-tytulu-.jpg)


Komentarze (3)
Dodaj komentarz